模块化数据中心成未来新趋势-潍坊模块化数据中心
- 2018-06-21 18:34:00
- Amber 原创
- 3037

留一点颜面,,我本将心向明月,无奈明月照沟渠
当前,企业的创新和业务快速发展
都源于数字化的应用,
而数字化的核心就是数据中心。
目前,传统数据中心主要面临以下三个困境:
一是设备管理成本高,能耗居高不下;
二是部署难度大,复杂性日益增加;
三是工作负载跨多种环境分布,
灵活性的获得要以降低性能为代价。
构建现代化数据中心,戴尔从技术发展的趋势、数据中心在客户的业务应用、结合云联盟合作伙伴的技术提出完整的解决方案。
经过大量的优化设计,戴尔推出的模块化数据中心解决方案,具备定制化、智能管理、快速部署的特点,具备预验证、横向扩展、高可用性和成本优化几大优势,让企业大大降低IT投资费用。
模块化数据中心成为首选
在数据中心基础设施(俗称机房)的层面,模块化数据中心以其高可靠、高节能和快速部署,成为中小型数据中心发展的主流趋势。
据统计,到2020年国内模块化数据中心市场规模将达到50亿元人民币。
模块化数据中心是指每个模块具有独立的功能、统一的输入输出接口,不同区域的模块可以互相备份,通过相关模块的排列组合形成一个完整的数据中心。
对于中小型数据中心来说,模块化数据中心在简单、易用、可靠、运维可控这四个方面较传统数据中心有着无可比拟的优势。首先模块化数据中心一体化建设速度快,对部署环境的要求低,其次模块化产品可以提前在工厂进行预集成、预调试,并且具备智能化管理的功能。
对于大型数据中心来说也存在同样的发展趋势,因为从IT的本身发展来看,高密化一定是IT设备的发展趋势。在IT设备高功率密度的趋势下,采取行级近端制冷的模块化方式,制冷的效率会大大提升。
在云时代数据中心趋向高密化的驱使下,模块化数据中心建设方式成为必然的选择。
因需而变、快速部署
戴尔模块化数据中心基础架构解决方案包含了戴尔的UPS/配电、制冷空调、机柜产品、环境监控和运营管理、以及机房设计和实施,具备几大特色。

戴尔模块化数据中心解决方案
首先,灵活定制,
针对企业不同的规模,提供多种选择。
对于中小企业,戴尔移动微模块数据中心,可以让中小企业无需拥有数据中心和专业数据中心管理人员前提下,快速实现数据中心部署和智能管理。
比如,某公司在生产场地没有数据中心,但需要对所有的硬件系统进行全生命周期管理,并保持灵活性和扩展性。戴尔提供了针对小型IT空间的单机柜一站式解决方案,方案包括制冷、UPS和配电、PowerEdge服务器、存储、网络、环控与管理六大模块。
还有互联网企业,运行千上万的服务器,数据中心往往布局在偏远地区,耐热耐寒,制冷耗能效率的管理,成为互联网公司控制IT开支重要考量因素。戴尔模块化数据中心,通过高效冷却,能耗模块,以及高密度和低能耗服务器/网络,助力互联网公司降低能耗,提高密度,简化部署扩展。
由此可以看出,戴尔提供1-2个机柜、2-10个机柜、大于10个机柜以及集装箱数据中心等多种应用选择,能同时满足小型数据中心和高密度大型数据中心的不同需求。

小型企业方案:无需建机房
第二,全模块化设计,
为企业塑造有弹性的高效硬件平台。
戴尔模块化数据中心将各个系统进行全模块化的设计和整合,真正适应客户各种IT需求,完全满足了客户对于高可用、易扩展、高灵活性、省成本的需求。为此,企业无需再建小机房,也无需专人维护。
如果是在高端写字楼里配置IT系统,一方面企业不想占用太多的办公室面积,另一方面企业对于控制噪音有严格要求。为此,被誉为“装在盒子里的计算机房”的针对小型IT应用设计的Netshelter CX 移动式微数据中心可以满足客户噪音控制的需求与环境需求。
第三,部署方面,戴尔多机柜
模块解决方案,让企业边成长边投资。
模块化数据中心代表了数据中心未来的发展方向,而微模块数据中心将成为最近5年的一个主流,并将大规模替代传统的数据中心机房。具备绿色节能、快速安装等优势的微模块化数据中心将成为未来竞争的利器。
对于需要分期部署基础设施的企业,可以选择戴尔多机柜模块解决方案,可以有效降低数据中心的运营成本和资本性支出,满足了客户分期采购的需求。

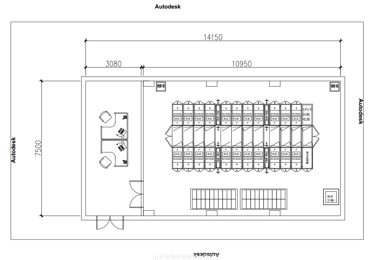
多机柜模块化数据中心
戴尔多模块数据中心,通过阶段化多模块规划部署,让用户优化IT预算和业务目标的统一,满足业务拓展和创新需求。
戴尔多模块结合灵活的IT架构技术组合,为用户提供灵活的技术选择。同时,通过数据中心统一智能监控、管理、结合开放标准技术,为用户长期投资提供保护。
戴尔多机柜模块化数据中心系统架构实行框架化,机柜、供配电、环境控制、监控等系统都集成了模块内部件预制,现场安装简单,整个数据中心机房建设可以分期部署、按需扩容、提高机房负载率、降低能耗。
化繁为简 边成长边投资
戴尔配合当今高融合数据中心的基础架构和云计算数据中心架构,可以实现数据中心机房基础设施和IT设备的高效模块化部署和扩充,有利于IT业务的快速发展,成为未来超融合数据中心基础建设的首选方案。
首先,预验证。戴尔模块化数据中心解决方案经过大量的预集成和优化设计,对数据中心的各个阶段进行了校验,能够帮助客户进行全生命周期成本的IT规划,提高数据中心可用性,减少了因设计不当等人为因素导致的故障和风险,为未来的IT需求变化做准备。
其次,标准化组件和模块化结构,使设计、部署、扩容和升级更简单,对于数据中心和IT设备的监控、运营、管理和设置更加轻松,非常适合发展迅速的企业。
再次,成本优化。在数字化转型大潮中,企业往往需要建设大量IT基础设施。戴尔模块化数据中心让企业能够大大降低初期的IT投资费用,“边成长边投资”,以实现最佳的投资回报率。
另外,“远程配置”和“即插即用”减少了对现场操作的需求,减少运维成本。这对处于快速成长期或者转型期的企业来说是一种非常理想的方案。
最后,戴尔的每个模块化产品都有一个“大脑”可以进行自我的故障检测和管理,并实现数据中心基础设施与ICT设备的联动。
在我看来,数据作为企业的核心资产正成为驱动企业前进的新动力,戴尔模块化数据中心解决方案简化了数据中心的设备、实施以及运维流程,降低成本,对于快速成长期和转型期的企业来说,无疑是一种非常理想的方案。